IDEAS EN
REALIDADES
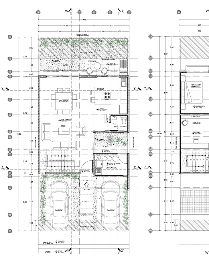
El Proyecto Ejecutivo es la segunda etapa o el instructivo para realizar la construcción detallada del proyecto; renders hiperrealistas y todos los planos necesarios para la correcta ejecución de la obra. Desarrollamos el proyecto ejecutivo pensando en cada detalle, en los métodos constructivos, en las necesidades y gustos del cliente, creamos reuniones de trabajo con nuestro equipo multidisciplinario para agrupar todas las propuestas y mejores soluciones para el proyecto.
